Detailansicht

Moderne 2-Zimmerwohnung in Crailsheim

Objekt-ID: 3247

Objektdetails

ObjektartWohnung
ObjekttypEtagenwohnung
VermarktungsartKauf
PLZ74564
OrtCrailsheim
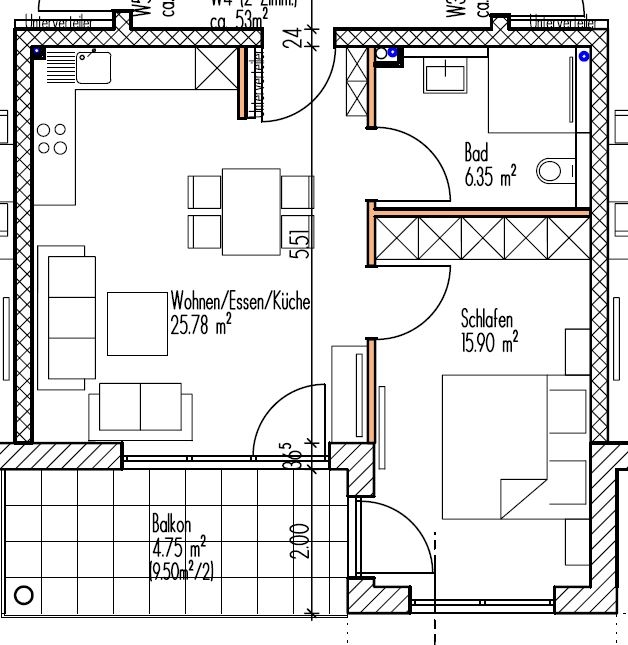
Wohnfläche53 m²
Anzahl Zimmer2
BefeuerungLuft/wasser Wärmepumpe
HeizungsartFußbodenheizung
Etagenzahl3
FahrstuhlPersonenaufzug
Balkon/TerrasseJa

Preisdetails

Kaufpreis226.000,00 €

Energieausweisdaten

Baujahr2026
ZustandErstbezug
Energieausweis gültig bis0000-00-00
Das Neubauprojekt Ranunkel 3 ist auf energetisch neuestem Stand und bietet durch seine individuelle Raumaufteilung genügend Platz für Paare, Singles oder Senioren. Jede Wohnung ist der Sonne zugewandt und eine großzügige Verglasung bietet Ihnen ein hohes Maß an Wohnqualität. Abgerundet durch die landschaftlich reizvolle Lage direkt am Naturschutzgebiet Reußenberg ist es ein perfektes Fleckchen Erde um sich zu Hause zu fühlen. Die direkt daneben entstehenden Ranunkel-Reihenhäuser sind ebenfalls Teil einer gelungenen Stadtentwicklung im Neubaugebiet.
Wirtschaftsstark und familienfreundlich, Charakter, Charme und hohe Lebensqualität, das ist Crailsheim. Die Stadt im Hohenlohischen bietet eine perfekte Mischung aus Berufs-, Bildungs- und Freizeitangeboten. Moderne und familienfreundliche Wohnbaugebiete überzeugen durch hre gute Infrastruktur und die gleichzeitige Nähe zu intakter Natur. Crailsheim hat alles, was Kosumenten brauchen: vom großen Supermarkt bis hin zum kleinen Bioladen, vom traditionsreichen Bekleidungs- oder Möbelhaus bis zur lässigen Fashion- und Schuhboutique. Qualifizierte Handwerksbetriebe verwöhnen das Crailsheimer Einkaufspublikum zudem mit ihren Produkten und Dienstleistungen. Auf für Ihre Gesundheit ist bestens vorgesorgt: Allgemeinärzte und Spezialisten für nahezu alle Beschwerden befinden sich in unmittelbarer Nähe.
Highlights: - helle, großzügig geschnittene Wohn- Essbereiche - große sonnige Terrasssen - gehobene Ausstattung - schlüsselfertig zum Festpreis - Garagen und Stellplätze
Folgen Sie uns auf Facebook und erhalten Sie immer die neusten Infos, Bilder, Immobilienangebote und Veranstaltungen: https://www.facebook.com/stroebel.de
Bitte akzeptieren Sie die Marketing-Cookies, um die Karte zu sehen.